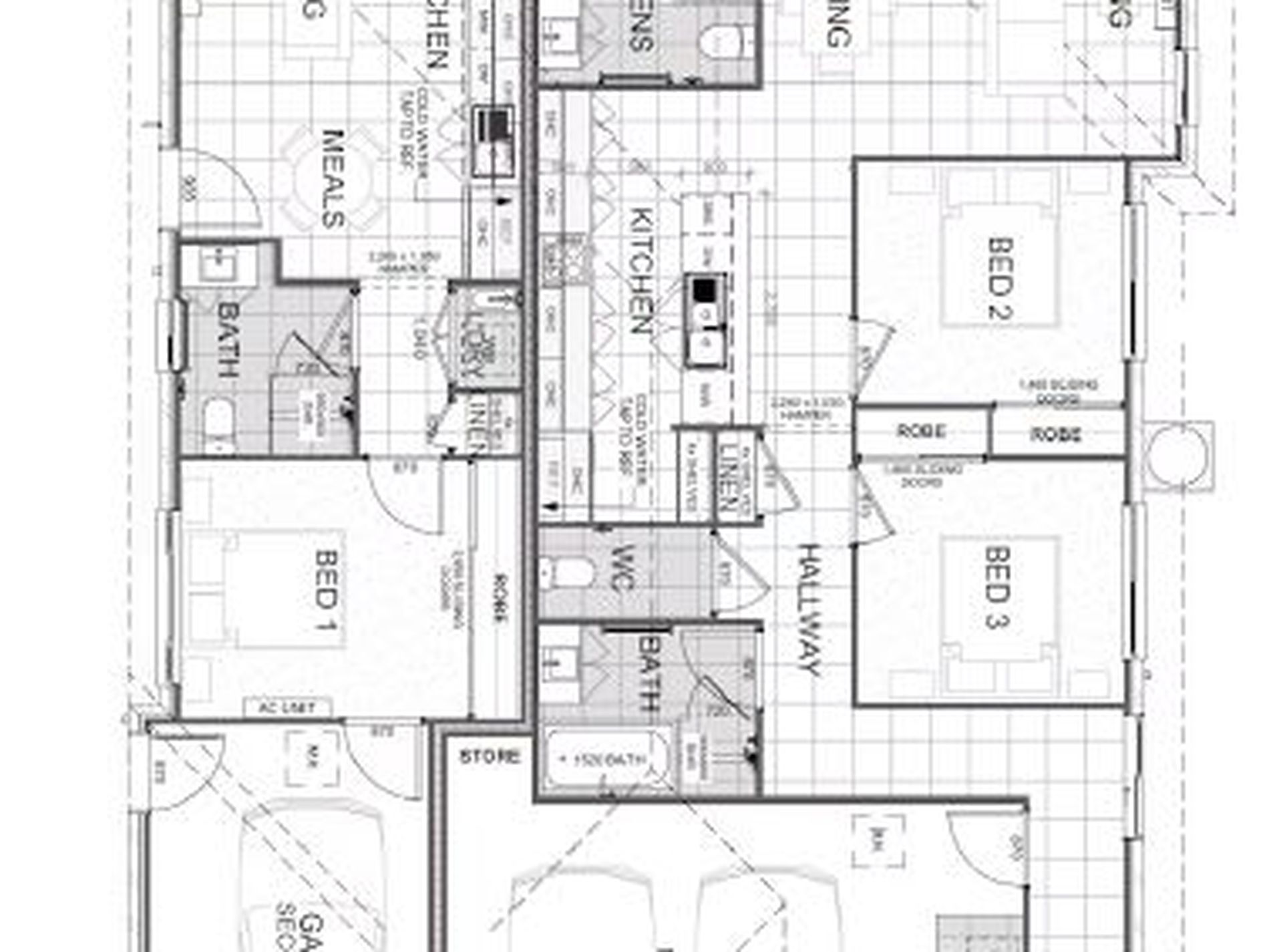
Set on a generous 618m² block with a total build size of 244m², this thoughtfully designed dual-living home offers two self-contained residences under one roof. Ideal for multi-generational living or investors seeking dual income, each dwelling features its own private entrance, kitchen, living area, bathroom, and garage — providing versatility and strong rental appeal.
Key Features:
✔ 20mm stone benchtops to kitchen, bathrooms & laundry
✔ Stainless steel 600mm appliances including dishwasher
✔ Split-system air-conditioning to both dwellings
✔ Ceiling fans to all bedrooms and living areas
✔ 920mm wide feature entry door with contemporary façade
✔ Roller blinds and flyscreens to windows and sliding doors
✔ Landscaping, fencing, driveway, and letterbox included
✔ 2440mm ceiling height and quality flooring throughout
✔ Full turnkey inclusions – ready to move in or rent out
This full turnkey package is priced at $1,145,900, offering premium finishes, energy efficiency, and long-term value in one of North Brisbane’s fastest-growing suburbs.
Estimated Rental Return:
✔ Main Dwelling (3 Bed): $620 – $640/week
✔ Secondary Dwelling (1 Bed): $440 – $460/week
Total: $1,060 – $1,100/week
Whether you’re an investor seeking dual income or a homeowner wanting flexible living arrangements, this Burpengary Green dual-key opportunity delivers exceptional growth potential and immediate returns.
📞 Contact us today to secure this remarkable investment!
While all our packages are fixed price and with turnkey finishes, the final package price will be confirmed prior to contract. Any possible variation is dependent upon the selected floorplan, builders preferred siting and any alterations requested by the buyer that may incur additional charges. Packages remain subject to council approval, developer approval and/or availability at the time of enquiry. Images/videos are indicative only and for illustration purposes. They may depict fixtures and finishes different to the final package inclusions selected by the buyer.
Features
- Air Conditioning
- Reverse Cycle Air Conditioning
- Split-System Air Conditioning
- Fully Fenced
- Remote Garage
- Built-in Wardrobes
- Dishwasher











